ID CP2853458

Casa ta ideală! Vilă premium cu curte și terasă, fără comision!

ID CP2853458

264,900 €

Casă / Vilă cu 5 camere de vânzare
Berceni
164 mp
2025

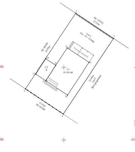
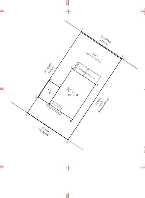
Vilă individuală premium – regim de înălțime P+1+M, amplasată pe un teren de 313 mp, construită pe structură solidă din beton armat și cărămidă Porotherm.

Locuința oferă confort și eficiență energetică ridicată, fiind dotată cu:

Tâmplărie PVC cu geam tripan

Încălzire prin pardoseală

Centrală termică pe gaz

Sistem de supraveghere video și alarmă

Compartimentare:

Parter:

Terasă de acces

Hol + vestibul

Baie

Bucătărie

Living generos

Terasă acoperită

Beci

Parcare acoperită

Etaj:

Casă scării

Hol

Baie

2 dormitoare

Dormitor matrimonial cu baie proprie

Mansardă:

Casă scării

Baie

Open space (cu posibilitate de compartimentare)

✅ Comision 0%!

📞 Pentru detalii și vizionări: 0743 090 345

Citește mai mult

  • Număr camere
    5
  • Dormitoare
    3
  • Număr bucătării
    1
  • Număr băi
    3
  • Geam la baie
    Da
  • Număr terase
    2
  • Număr garaje
    1
  • Număr locuri parcare
    2
  • Disponibilitate
    Imediat
  • Tip casă
    Individual
  • Stare interior
    Finisat modern
  • Anul finisării
    2025
  • Suprafață utilă
    164 mp
  • Suprafață construită
    234 mp
  • Suprafață construită la sol (Amprentă)
    77.0 mp
  • Suprafață teren
    313 mp
  • Suprafață curte
    313 mp
  • Suprafață curte liberă
    236 mp
  • Suprafață terasă
    16 mp
  • Deschidere
    14 m
  • Acoperiș
    Tablă
  • Stadiu construcție
    Finalizată
  • An construcție
    2025
  • Construcție nouă
    Da
  • Număr etaje clădire
    1
  • Are mansardă
    Da

Facilități

Apă
Bucătărie închisă
Cabină de duș
Cadă
Centrală proprie
Contor electric
Contor gaz
Curent
Curte
Faianță
Ferestre PVC
Fosă septică
Gaz
Geamuri cu protecție UV
Geamuri tripan
Glet
Grădină proprie
Gresie
Iluminat stradal
Încălzire prin pardoseală
Internet
Izolație exterioară
Mijloace de transport în comun
Nemobilat
Parcare acoperită
Parcare deschisă
Parchet laminat
Pivniță
Șapă
Scară interioară
Sistem de alarmă
Străzi asfaltate
Străzi pietruite
Supraveghere video
Ușă intrare PVC
Uși interior celulare
Vedere panoramică
Vopsea lavabilă
Axis Creativ Imobiliare - Axis Creativ Imobiliare
Axis Creativ Imobiliare
Manager

0743090345


Solicită chiar acum o vizionare
Telefon
Sună acum Solicită vizionare
Necesare:

Site-ul nu poate funcționa corect fără aceste cookie-uri. Vezi cookie-urile

Statistică:

Strângem statistici anonime despre voi, vizitatorii unici, pentru a vă îmbunătăți experiența dumneavoastră. Vezi cookie-urile

Marketing:

Pentru a ne promova mai eficient serviciile noastre, folosim cookies pentru a vă identifica și a vă oferi proprietăți și servicii personalizate. Vezi cookie-urile

Acest site folosește cookies, află detalii. Alege ce tipuri de cookies dorești să permitem: